ESPECIFICACIONES TÉCNICAS
TOTAL CONSTRUIDO: 149,90 METROS CUADRADOS APROX.
TERRENO: DESDE 298 A 319,35 METROS CUADRADOS APROX.
DISTRIBUCIÓN
TOTAL Nº DE HABITACIONES: 4
1 SUITE EN PRIMER PISO
1 SUITE EN 2DO PISO
2 HABITACIONES PARA CAMA INDIVIDUAL
Nº BAÑOS: 4
1 BAÑO EN SUITE EN PRIMER PISO
1 BAÑO EN SUITE EN SEGUNDO PISO
1 BAÑO EN SEGUNDO PISO
BAÑO DE VISITA: 1 EN PRIMER PISO (lavamanos y sanitario)
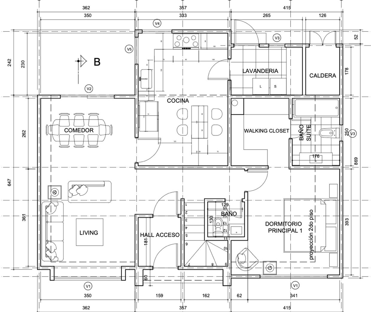
DISTRIBUCION DEL PRIMER PISO
Hall de acceso, baño de visita, living comedor, cocina con área para comedor de diario, loggia, sala caldera con acceso exterior, habitación principal con walking closet y baño en suite
DISTRIBUCION DEL SEGUNDO PISO
Sala de estar, habitación para cama matrimonial con walking closet y baño en suite, dos habitaciones para cama individual y un baño
REVESTIMIENTOS EXTERIORES
Revestimiento tipo piedra en columna central de fachada
Revestimiento de tinglado de fribrocemento en 1er y 2do piso.
Tejas asfálticas dobles
Ventanas termopanel con marcos de PVC
REVESTIMIENTOS INTERIORES
Revestimiento en tabiques: Yeso cartón 15 mm.
Revestimiento en cielos: Yeso cartón 10 mm.
Revestimiento térmico perimetral: Lana de vidrio
Gres porcelánico en pisos de baños, cocina, loggia y hall de acceso
Cerámica en paredes de baños y cocina
Cocina con cubierta cuarzo
Comedor de diario con cubierta de cuarzo
Lavadero con cubierta de cuarzo
Piso flotante en primer y segundo piso
Paredes con puntos para television
Escalera con pasamanos y huellas de madera de Lenga
IMPLEMENTOS
Caldera a gas natural
Termo de 190 litros a gas natural
Radiadores en primer y segundo piso
Termostato en primer piso
Cocina a gas natural
Campana decorativa extractora
Lavaplatos
Loggia con lavadero
Puerta exterior de madera de lenga
Puertas interiores de MDF
Muebles de melamina en cocina, loggia y baños
Clóset de melamina en habitaciones
Grifería de baños y cocina
Baño primer piso y segundo piso: con tina y mampara de vidrio
Accesorios de baños: jabonera ducha, toallero, porta papel, percha
Lampistería interior y exterior con tecnología LED
Canaletas y bajadas de agua.
ENTREGA PROYECTADA DICIEMBRE 2027


.
Se deja expresamente establecido que el metraje señalado es aproximado y corresponde a metros totales y no a metros útiles municipales. Las imágenes virtuales son meramente ilustrativas y no necesariamente representan al producto final; su fin es mostrar una caracterización general de proyecto Condominio Robleria. Las características del proyecto pueden sufrir modificaciones sin previo aviso. Se informa en virtud de lo señalado en la Ley No. 19.496 de protección de los derechos de los consumidores.
Copyright © 2026 Constructora Los Caiquenes - Todos los derechos reservados.